Family Housing structure detail dwg file in Autocad format
Description
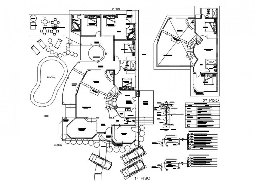
Family Housing structure detail dwg file. includes furniture layout plan with living room, dining area, bedroom, kitchen and toilet layout plan, sitting hall, dining hall, bedrooms, staircases detail, swimming pool detail, column and beam details and much more of family house design.

Uploaded by:
Eiz
Luna

